Projekte // Wohnen
Das planerische Konzept sieht für diesen Schenefelder „Dorfbereich“ eine Nachverdichtung mit zentrumsnahem Wohnraum vor.
Zur Umsetzung der Baumaßnahme wird der ehemalige Bauernhof, das Hauptgebäude und zwei Nebengebäude, abgebrochen und einige untergeordnete/nicht zu schützende Bäume gefällt.
Die städtebauliche Anordnung der geplanten Wohnanlage soll die ursprüngliche Nutzung des Ortes als Bauernhof ablesbar halten, den Genius Loci bewahren. Aus diesem Grund bilden drei Gebäude einen Hof um die besonders schützenswerte und raumbestimmende Hängebuche.
Das Hauptgebäude entlang der Dorfstraße bildet den nördlichen-, die beiden weiteren Gebäude den südwestlichen- bzw. südöstlichen Abschluss des Hofes.
Der zentrale Hofbereich ist autofrei. Er bildet den räumlichen und sozialen Mittelpunkt der Wohnanlage. Hier finden alle nachbarlichen Aktivitäten für alle Alters- und Wohngruppen statt. Als Nutzung sind hier Sonnen- und Schattenplätze unter der Buche, Spielgeräte, Festveranstaltungen und Boule-/Murmelspiel auf der zentralen Grandfläche gewollt.
Die Erschließung der Wohnanlage erfolgt für das Gebäude 1 (Häuser 1+2) von der Dorfstraße, für das Gebäude 2 (Häuser 3+4) und das Gebäude 3 (Haus 5) von der Straße In de Masch.
Die Tiefgarage erstreckt sich unter die beiden westlichen Gebäude und wird aus der westlichen Grundstücksecke über eine Rampe erschlossen.
Die unterbauten Gebäude sowie die Flächen der Tiefgarage sind alle angehoben um den Grundwasseranstrom für die zu erhaltenen Bäume zu sichern.
Um die Einheitlichkeit der Wohnanlage zu betonen, sind alle Gebäude zweigeschossig mit Dachgeschossen und 30°-Satteldächern geplant. Die Freiräume (Dachterrassen) für die Dachgeschosswohnungen werden in die Satteldächer „eingeschnitten“, um symetrische Giebelansichten zu erhalten. Die Fassadengestaltung der Gebäude, im Erdgeschossbereich Verblendmauerwerk in grauroten Farbtönen, die Obergeschosse, mit gräulicher vertikaler Holzlattenverkleidung soll den ländlich-/dörflichen Charakter des Standorts betonen.
Bauherr:
Behrendt Wohneigentum 19 GmbH
Haustechnik:
Ingenieurbüro OTTO & Partner
Statik:
Ingenieurbüro Abel Gebhart GmbH & Co. KG
Freiraumplanung:
Lichtenstein Landschaftsarchitekten
BGF:
6.925 m²
Fertigstellung:
2022
Dorfstraße 12-14
In de Masch 21
22869 Schenefeld
Visualisierungen: monokrom hamburg
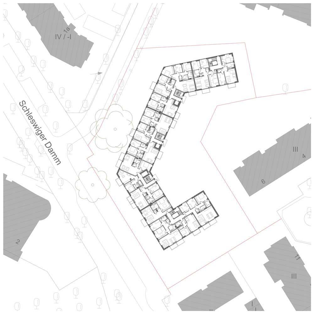
Das Grundstück in Schnelsen liegt an der nordöstlichen Kreuzung des Schleswiger Damms und Grothwisch.
Der Schleswiger Damm ist im Bereich des Grundstücks verkehrsberuhigt, der Hauptverkehr wird vom südlichen Bereich des Schleswiger Damms in die Marek-James-Straße geführt. Gegenüber des Grundstücks befindet sich ein städtischer Platz mit Einrichtungen der Nahversorgung, wie z. B. Bäckerei, Supermarkt, Kindergärten und einem Restaurant. Es schließt sich der Roman-Zeller-Platz an, an dem sich die Haltestelle Burgwedel der AKN und Bushaltestellen befinden.
Die Gebäudekubatur staffelt sich von Süden (fünf Geschosse + Staffelgeschoss) nach Norden (drei Geschosse) hin ab. Geplant ist eine Wohnanlage mit 73 Wohneinheiten. Dabei ist ein Wohnungsmix aus Zwei-, Drei- und Vierzimmerwohnungen vorgesehen. Alle Wohnungen erhalten Terrassen oder Balkone. Die Fassaden werden straßen- und hofseitig in rotem Klinkermauerwerk erstellt. Die straßenseitig eingerückte Fassade des obersten Staffelgeschosses soll aus konstruktiven Gründen ein hellgetöntes Wärmedämmverbundsystem erhalten, ähnlich der Nachbarbebauung.
Die Haupterschließung der Wohnungen erfolgt über einen Fußgängerdurchgang im Gebäude vom Schleswiger Damm aus in den Innenhof der Wohnanlage. Ein weiterer Zugang befindet sich im Norden für den dreigeschossigen Baukörper vom Grothwisch. Alle Treppenhäuser erhalten eine Aufzugsanlage, sodass alle Wohnungen schwellenfrei zu erreichen sind. 16 Wohnungen sind barrierefrei geplant. Ein Drittel der geschaffenen Wohnfläche ist als sozial geförderter Wohnungsbau geplant. Im Kellergeschoss ist eine Tiefgarage mit 40 Kfz-Stellplätzen, im begrünten Innenhof der Wohnanlage ein großzügiger Kinderspielplatz vorgesehen.
Bauherr:
Bonava Wohnbau GmbH
Haustechnik:
Bonava Wohnbau GmbH
Statik:
Bonava Wohnbau GmbH
BGF:
6.580 m²
Fertigstellung:
2020
KfW 55 Standard
Schleswiger Damm 260/
Grothwisch 2-4
422457 Hamburg
Visualisierungen: Bonava Deutschland GmbH
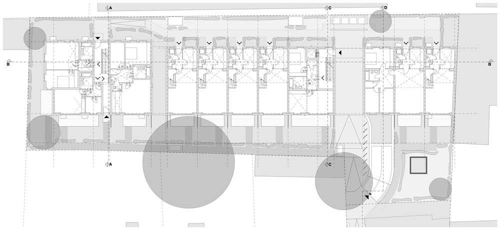
Die Planung sieht die Errichtung einer neuen dreigeschossigen Wohnanlage mit Staffelgeschoss der Gebäudeklasse 4 vor.
Die neue Wohnanlage erstreckt sich im Hofinnern fast über die volle Grundstückslänge und ist gegliedert in einen kompakten dreigeschossigen Baukörper (Haus 1), der als Grenzbebauung an die benachbarte dreigeschossige Bebauung anschließt, und einen längeren viergeschossigen Baukörper (Haus 2), der sich zum nordwestlich benachbarten Flurstück 2311 hin auf zwei Geschosse abtreppt.
Haus 1 wird über ein notwendiges Treppenhaus erschlossen und ist als Zweispänner mit sechs Wohneinheiten organisiert.
Die 15 Maisonettewohnungen des viergeschossigen Gebäudes sind direkt aus dem Erdgeschoss sowie über einen Laubengang im 3. Obergeschoss zugänglich. Vier weitere Wohnungen werden barrierefrei über ein notwendiges Treppenhaus mit einem rollstuhlgerechten Aufzug erschlossen.
Unterhalb der Erdgleiche sind eine Tiefgarage mit zwanzig Stellplätzen, die Räume für Hausanschlüsse, Haustechnik und Nebenanlagen sowie die den Wohnungen zugeordneten Abstellräume vorgesehen.
Insgesamt entstehen auf diese Weise 25 neue Wohnungen mit Wohnflächen zwischen 62 m² und 102 m². Sechs Wohneinheiten sind barrierefrei zugänglich.
Bauherr:
Behrendt Wohnungsbau KG
(GmbH & Co)
Fertigstellung:
2020
Isebekstraße 27 a
22769 Hamburg
Visualisierungen: Behrendt Wohnungsbau
Das ehemalige Schutzbauwerk liegt im Hamburger Bezirk Wandsbek zwischen den Straßen Wasserstieg und Nebendahlstraße. Alliierte Bomber zerstörten im Jahr 1943 den Bezirk Wandsbek großflächig, sodass typische Nachkriegsbauten der 50er Jahre das Stadtbild hier dominieren. Der Luftschutzbunker – in den Jahren 1941/42 errichtet – bot ca. 1.107 Schutzplätze auf sieben Ebenen. Die Außenwände des Bunkers sind ca. 1,10 m mächtig, das Dach hatte eine Stärke von 1,40 m.
Der Luftschutzbunker ist zu einem Wohngebäude umgenutzt worden. Um eine Wohnnutzung zu ermöglichen und den Anforderungen des Brand- und Schallschutzes sowie dem Nutzen entsprechender Belichtung für den mehrgeschossigen Wohnungsbau zu entsprechen, musste umfangreich in die Bausubstanz eingegriffen werden. Für die Belichtung sowie die Neueinteilung der Geschosse wurden die zwei Bunkerwände zu den Straßenseiten, das Dach sowie das Bunkerinnere komplett entfernt.
Die Neueinteilung der Geschosse ergibt sieben Wohnebenen und ein zusätzliches Staffelgeschoss mit insgesamt 19 individuell gestalteten Wohneinheiten.
Der ursprüngliche Bunkerbau ist an den seitlichen – erhalten gebliebenen Wänden – sichtbar. Im Kontrast dazu stehen die Füllungen der abgebrochenen Bunkerwände mit großzügigen Fensterelementen und die farbig verglasten Balkone. Auch im Bunkerinneren blieben Spuren der ehemaligen Nutzung erhalten.
Das benachbarte Grundstück wurde mit einem abgestaffelten Neubau bebaut, welcher über Öffnungen mit dem Bunker verbunden ist und die Wohnungen vergrößert. Im Erdgeschoss befindet sich unter dem Neubau ein öffentlicher Durchgang und die Zufahrt zur Garage.
Bauherr:
Hamburg Estate GmbH
Haustechnik:
Ingenieurbüro Nollmann
Statik:
Ingenieurgemeinschaft Puszies
BGF:
3.080 m²
Fertigstellung:
2018
KfW 55 Standard
Wasserstieg 11/Nebendahlstraße 22
22041 Hamburg
Visualisierungen: moka-studio
Das vorhandene viergeschossige Wohnhaus – Anfang der 70er Jahre des 20. Jahrhunderts erbaut – wurde um ein Vollgeschoss aufgestockt.
Der Bestandsbau ist in monolithischer Bauweise mit Rotklinkerfassade erstellt. Alle tragenden Teile der Aufstockung wie Decke, Außenwände, Dach und Wohnungstrennwände sind in Holzbauweise ausgeführt, die Raumtrennwände sind in Trockenbauweise erstellt. Es sind drei neue Wohneinheiten mit jeweils ca. 60 m² Wohnfläche entstanden.
Um die kubische Wirkung des Aufbaus zu unterstreichen, kragt die Aufstockung zur Straßenseite über den Bestand aus. Die großen Westbalkone werden von den hellgrauen Fassadenplatten seitlich und von oben eingerahmt.
Bauherr:
Harald und Matthias Geist GbR
Statik:
Ingenieurbüro Dultz, Hamburg
Generalunternehmer:
Kistner Baugesellschaft GmbH
BGF:
228 m²
Fertigstellung:
2016
Mumsenstraße 16
22767 Hamburg
Fotos: AG horizont
Die Rosenstraße liegt in der Husumer Altstadt unweit vom städtischen Hafen. Der Neubau besteht aus zwei unabhängigen zweigeschossigen Gebäuden in Massivbauweise mit jeweils einem Staffelgeschoss in Holzständerbauweise. Das an der Rosenstraße gelegene Gebäude schließt entlang der Straßenflucht die gesamte Baulücke, während das hintere Gebäude auf dem Grundstück freistehend platziert ist. In den Gebäuden befinden sich jeweils fünf Eigentumswohnungen.
Durch den natürlichen Geländeverlauf von der Rosenstraße zur nördlichen Grundstücksgrenze, mit einem Höhenunterschied von ca. 2,10 m, liegt das Untergeschoss an der Rosenstraße mit den Garagenstellplätzen mit der Straße beinahe niveaugleich, während das Untergeschoss von Haus 2 vollständig unter dem Geländeniveau liegt. Die Zugänge zu den Häusern im Erdgeschoss mit ihren vorgelagerten Terrassen, den Gemeinschaftsflächen und dem Kleinkinderspielplatz sind über einen Treppengang von der Rosenstraße aus zugänglich, sowie schwellenfrei vom nordöstlich angrenzenden öffentlichen Parkplatz der Stadt Husum zu erreichen.
Bauherr:
Topfhof Bauträgergesellschaft mbH, Husum
Haustechnik:
Ingenieurbüro Busch
Statik:
Ingenieurbüro Nielsen
Ingenieurbüro Thies und Bremser
BGF:
1.390 m²
Fertigstellung:
2016
Rosenstraße 21
25813 Husum
Fotos: AG horizont
Das Grundstück Schillerstraße 21 liegt im Stadtteil Altona-Altstadt im Petrikirchenviertel. Die ursprüngliche, aus der zweiten Hälfte des 19. Jahrhunderts stammende Bebauung des Grundstücks Schillerstraße 21 wurde im Zweiten Weltkrieg zerstört und später mit einem eingeschossigem Pavillon bebaut.
Der Neubau des Wohngebäudes Schillerstraße 21 stellt die städtebauliche Vorkriegssituation an der Kreuzung Schillerstraße/Schmarjestraße mit einer geschlossenen Blockrandbebauung wieder her. Der viergeschossige Baukörper mit 13 Mieteinheiten ist in drei Zonen geteilt: Eine zurückgesetzte Sockelzone, die dreigeschossige Hauptzone und ein die Ecksituation betonendes Dachgeschoss.
Die zurückgesetzte Sockelzone mit einem grau gebrannten dänischen Klinker und die in beigen Klinker verkleideten auskragenden Obergeschosse lassen den kubischen Baukörper über dem Platz schweben. Loggien und anthrazitfarbene Fenster – in Höhen und Breiten identisch – bewirken eine gleichmäßige horizontale und vertikale Bänderung der Fassade, die Ruhe und Klarheit ausstrahlt.
Eine großzügige Grundrissgestaltung mit offenen Küchen geben den Zwei-, Drei- und Fünfzimmerwohnungen einen Loftcharakter.
Bauherr:
Potenberg Grundstücksverwaltung GmbH & Co. KG
Haustechnik:
Ingenieurbüro Otto
Statik:
Ingenieurbüro Nielsen
BGF:
1.730 m²
Fertigstellung:
2008
Schillerstraße 21
22767 Hamburg
Fotos: Franz Wintschnig, Franklin Hollander
Das Dachgeschoss des 1897 errichteten Mehrfamilienhauses in Hamburg-Ottensen wurde zu einer ca. 130 m² großen Wohnung ausgebaut.
Zur Belichtung der Gebäudemitte und für die Zugänglichkeit der geplanten Dachterrasse als Freisitz auf dem Dach, wurde eine zum unteren Geschoss hin offene Galerie als „Laterne“ für die Nutzung als Lesezimmer und Bibliothek in die Dachkonstruktion eingeschnitten. Der Grundriss der Küche und des Wohnbereiches ist zueinander offen, nur der Schlafbereich und die Nasszelle sind abgetrennt. Die gewellte Flurwand versteckt Garderobe, Heizung und Badezimmer.











































































